
iBiệt thự Quốc dân mái Nhật hiện đại..!
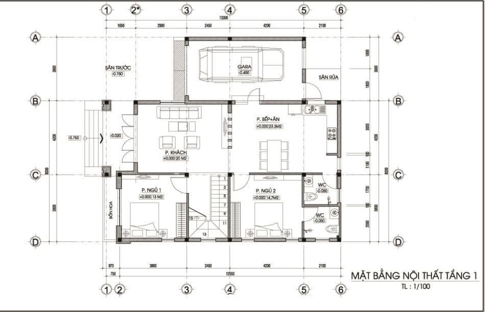
Nhà 2 tầng mái Nhật kích thước: 8x12m. Công năng sử dụng như sau:
Tầng 1: 01 phòng khách, 01 phòng bếp + ăn, 02 phòng ngủ, cầu thang, 01 wc khép kín ( 01 WC chung bố trí riêng ngoài nhà chính)
Tầng 2: 02 phòng ngủ,phòng thờ, 01 phòng sinh hoạt chung, cầu thang,2 wc (1 wc khép kín )
Ai muốn lấy đầy đủ thiết kế tham khảo thi công ib nhắn tin mình..!!!
Xem thêm:


